


馳能品牌旗下廚房工程公司
線上線下同步的商廚工程服務商
全國免費服務熱線:
134-1596-7896
400-888-4168
馳能廚房工程
線上線下同步的商廚工程服務商
設備配套 | 價格透明 | 上門勘察 | 專屬設計 | 輕松過檢 | 快速報價 | 風水布局
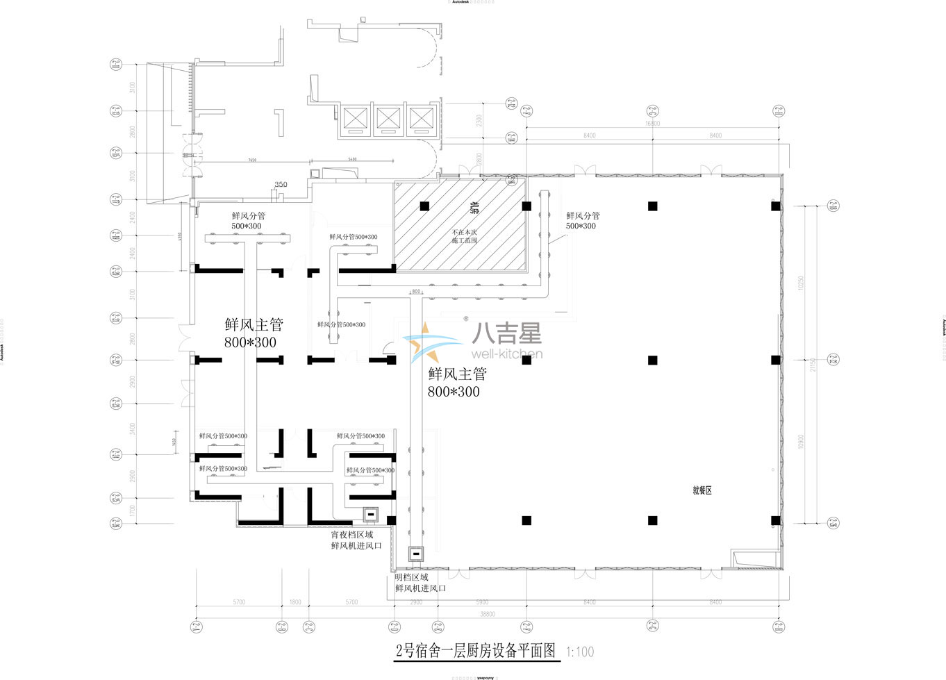
商用廚房新風系統工程是油煙凈化系統中重要的一環,主要由送風系統和排風系統組成的一套獨立空氣處理系統,對空氣動力學,工業設計能力有嚴格的計算要求,優秀的新風系統可以高效提升廚房油煙及時排出,減低廚房整體溫度,保持廚房整體良好通風,大幅降低系統運行過程中的噪音,大幅提升廚房工作環境狀態。

八吉星擁有專業的空氣動力學工程師,工業動力學工程師,專門進行廚房新風系統送風系統和排風系統空氣流動計算,可滿足不同廚房不同程度運行負荷下的空氣流動需求并且配套行業專業排煙抽風設備品牌進行全系統量身設計,輕松達到強力通風的同時保持低噪音,提升油煙抽排效率,保持良好的廚房工作環境,讓顧客享受優質的餐飲環境。

所有商業餐飲場所,辦公場所,地下超市等。
|
|
|
|
|
馳能專注廚房新風系統工程,打造專屬于您的廚房新風系統工程
八吉星專業空氣動力學工程師上門考察,可根據客戶實際環境,廚房運行負荷狀況,油煙抽排狀態等進行新風系統空氣動力解決方案。

業內新風系統設備品牌商配套系統,囊括入門乃至高端等級,滿足不同用戶的設備需求配套。

專業油煙抽排工程師上門測量計算廚房空氣流動數據,廚房負荷數據,通過空氣動力學計算提供全套新風系統工程解決方案。

經過嚴格的空氣動力學計算,確保廚房在不同運營負荷狀態下都能輕松達到目視無油煙,不影響廚房工作環境,顧客餐飲環境。

八吉星新風系統工程可打造強力新風系統的同時保持低噪音影響,還你良好的廚房工作環境。

全國統一服務體驗,工廠直供廚房設備配套,商用廚房工程解決方案服務商
直屬廚具設備生產廠家及研發基地,實現價格同步,價格透明可查。
全國各地設有辦事處,快速響應客戶廚房工程需求上門服務。
專業廚房工程師最快24小時內完成商用廚房工程設計平面圖。
馳能最快48小時內快速提供廚房工程及設備報價清單。
馳能全國連鎖式廚房工程公司模式提供全國統一售后服務體驗。
以倡導商用廚房運作新模式、引領商用廚房科技導向為己任,做客戶身邊可信賴的服務商。
其前身為廣東明寶廚房工程設備有限公司成立于2012年,從單一廚房工程公司逐步成為一個全產業鏈化的綜合型公司,為配合發展,于2020年整合明寶廚房工程,2024年整合八吉星廚房工程設備業務,線上銷售業務、線下代理商渠道為廣東玖尚電子科技有限公司。
相對于其他廚房工程公司,馳能具有獨特的互聯網+基因。在2013年即啟動電商營銷團隊。并攜手多家專業商用廚房設備品牌,并且連續5年全網銷量第一。
您的基本數據有助于我們的設計師快速設計工程平面圖及報價清單
我們需要根據您的廚房面積,為您的廚房設計功能性布局圖。
我們需要根據您廚房的用餐人數,對您的廚房進行針對性地設計。
我們需要了解您廚房每天的開餐次數,為您的廚房設備設計提供參考。
我們需要提供給我們您食堂的標準定為:豪華的?普通的?大型的?小型的?
用戶是企業發展的源泉。
優質產品,是走向世界的橋梁。
保證質量,是對社會的承諾。
用心服務
我用心 ? 您放心
馳能廚房工程用心踐行,走好每一步,讓客戶安心。
通過咨詢或填寫表單,預約免費上門勘察
專業工程團隊免費上門勘察,客戶需求采集
根據客戶需求以及現場考察,快速設計出稿
根據客戶需求出稿后待客戶確認設計圖紙
專業施工團隊,全程由工程負責人監督
配套廚房設備定制完成后,有序運送進場
雙方達成設計及工程服務共識,簽訂合同
根據確認圖紙及配套設備48小時快速報價
專業檢測人員對整套廚房設備進行全面試運營
施工完成,試運營沒問題后,供客戶驗收
進入正式運營,馳能專業團隊前期運營指導
廚房工程出現問題,均有專業人員上門服務