


馳能品牌旗下廚房工程公司
線上線下同步的商廚工程服務商
全國免費服務熱線:
134-1596-7896
400-888-4168
馳能廚房工程
線上線下同步的商廚工程服務商
設備配套 | 價格透明 | 上門勘察 | 專屬設計 | 輕松過檢 | 快速報價 | 風水布局
連鎖餐飲廚房相對于其他商用廚房跟講究標準化及品牌定位,連鎖餐飲廚房講究低成本運營,高品質標準化廚房設備及廚房工作流程,針對不同的連鎖餐飲品牌進行專門設計,符合對應品牌的定位,風格,菜品標準化出餐。
經過整套解決方案設計后,后續新增店鋪可根據加盟檔次直接套用對應廚房工程,降低廚房工程成本,提升施工效率及標準化。
為了進一步提升連鎖餐飲廚房的出餐效率,出餐品質,標準化流程,降低人員數量以及總部控制力八吉星除了提供傳統商用連鎖餐飲廚房工程解決方案還提供物聯網全智能連鎖餐飲廚房工程解決方案,供客戶選擇。


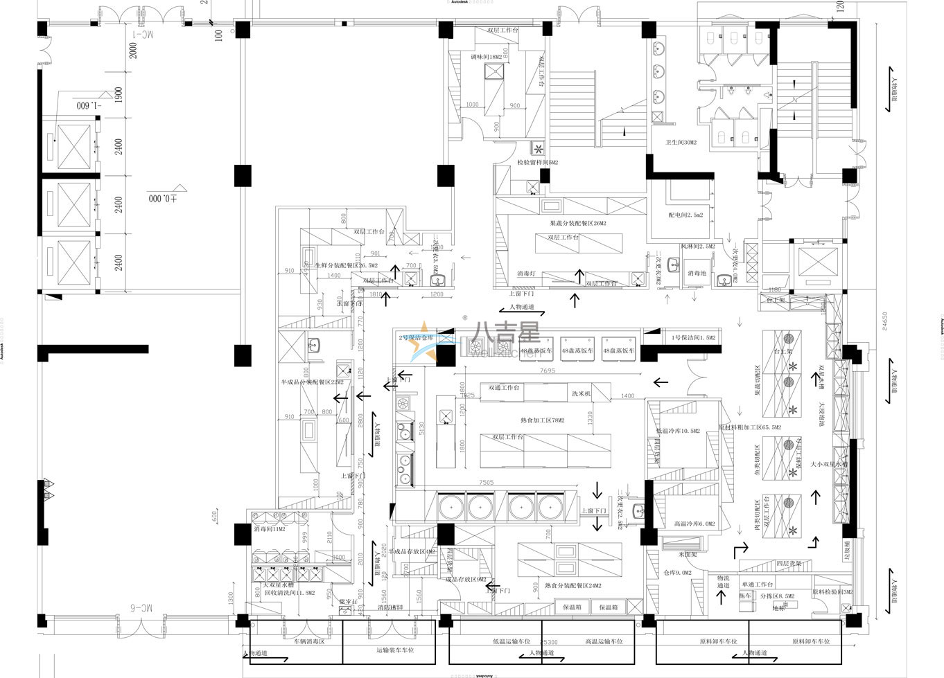
八吉星連鎖餐飲工程是專門針對中高端連鎖品牌餐飲的整體工程解決方案,可根據不同品牌的定位,裝修風格,菜品,店鋪單位,現場情況進行系統性標準化的整套連鎖廚房工程施工配套解決方案。

廚房后期運營成本;
提升空間利用與和操作流程;
保證出餐效率與質量;
注重廚房工作環境;
一站式連鎖商用廚房設備配套,定制,安裝與售后服務;
根據品牌定位,裝修風格,店鋪檔次,現場情況給出一整套標準化解決方案方便餐飲品牌商日后新進店鋪的廚房工程套用;
可打造傳統商用廚房或者物聯網智能廚房;
專業風水師進行廚房風水設計布局。
為了推進商用廚房自動化,智能化,如今八吉星還推出全自動智能連鎖商用廚房工程,可打造全程標準化自動炒菜,配餐,出餐,收款一站式智能連鎖餐廳,大幅減低店鋪員工數量,提升出品效率,出餐口味標準化。
提供空中系統更新,可在總部研發完成菜式后直接遠程更新到旗下連鎖品牌餐廳,更新完畢后即可標準化自動出餐,全程由微電腦精確控制確保不同的連鎖店一樣的味道。
如今已與部分知名餐飲連鎖品牌達成合作協議。
連鎖品牌餐廳,連鎖酒店,連鎖飯店,中高端標準化企業飯堂,中高端標準化院校飯堂,全智能自動廚房等等。
|
|
|
|
|
馳能專注連鎖餐飲廚房工程,打造專屬于您的連鎖餐飲廚房工程
資深八吉星連鎖餐飲廚房工程師會根據客戶品牌定位,店鋪裝修風格,菜品種類,加盟檔位等多維度聯合設計,根據餐飲品牌整體需求從裝修風格,功能設計,設備款式定制,設備功能定制,廚房樣式等量身定制連鎖餐飲廚房工程解決方案。

八吉星旗下擁有16家直屬設備生產廠家,并與多家行業知名品牌達成戰略合作,提供商用廚房全套設備配套供應鏈,除了提供標準款設備外還提供各類廚具設備定制,售后服務,如有需要客戶還可以親臨工廠進行現場考察。

八吉星除了提供傳統商用連鎖餐飲廚房工程解決方案外,還提供由全新研發智能廚房設備打造的物聯網智能連鎖廚房工程解決方案,相對于傳統商用廚房,智能商用廚房更節省人工成本,出品效率提高,提升出品品質,隱秘菜譜可總部遠程升級,全程自動烹飪,標準化出品確保在不同的連鎖店都能做出一樣的口味。

八吉星與多家知名廚房設備品牌商達成戰略合作,提供廠家同步價格,省去中間商差價,提供高端餐飲設備定制服務,可根據品牌連鎖店風格進行全外觀定制服務,全程由廠家對接。

八吉星連鎖餐飲廚房工程師會結合餐飲品牌商的定位,店鋪檔次進行多重設計,提供完善的餐飲品牌不同加盟檔位的廚房工程解決方案,后續新增連鎖加盟店可根據店鋪檔次直接套用對應等級廚房工程,節省二次工程設計費用,提升工程施工效率,打造餐飲品牌標準化廚房。

全國統一服務體驗,工廠直供廚房設備配套,商用廚房工程解決方案服務商
直屬廚具設備生產廠家及研發基地,實現價格同步,價格透明可查。
全國各地設有辦事處,快速響應客戶廚房工程需求上門服務。
專業廚房工程師最快24小時內完成商用廚房工程設計平面圖。
馳能最快48小時內快速提供廚房工程及設備報價清單。
馳能全國連鎖式廚房工程公司模式提供全國統一售后服務體驗。
以倡導商用廚房運作新模式、引領商用廚房科技導向為己任,做客戶身邊可信賴的服務商。
其前身為廣東明寶廚房工程設備有限公司成立于2012年,從單一廚房工程公司逐步成為一個全產業鏈化的綜合型公司,為配合發展,于2020年整合明寶廚房工程,2024年整合八吉星廚房工程設備業務,線上銷售業務、線下代理商渠道為廣東玖尚電子科技有限公司。
相對于其他廚房工程公司,馳能具有獨特的互聯網+基因。在2013年即啟動電商營銷團隊。并攜手多家專業商用廚房設備品牌,并且連續5年全網銷量第一。
您的基本數據有助于我們的設計師快速設計工程平面圖及報價清單
我們需要根據您的廚房面積,為您的廚房設計功能性布局圖。
我們需要根據您廚房的用餐人數,對您的廚房進行針對性地設計。
我們需要了解您廚房每天的開餐次數,為您的廚房設備設計提供參考。
我們需要提供給我們您食堂的標準定為:豪華的?普通的?大型的?小型的?
用戶是企業發展的源泉。
優質產品,是走向世界的橋梁。
保證質量,是對社會的承諾。
用心服務
我用心 ? 您放心
馳能廚房工程用心踐行,走好每一步,讓客戶安心。
通過咨詢或填寫表單,預約免費上門勘察
專業工程團隊免費上門勘察,客戶需求采集
根據客戶需求以及現場考察,快速設計出稿
根據客戶需求出稿后待客戶確認設計圖紙
專業施工團隊,全程由工程負責人監督
配套廚房設備定制完成后,有序運送進場
雙方達成設計及工程服務共識,簽訂合同
根據確認圖紙及配套設備48小時快速報價
專業檢測人員對整套廚房設備進行全面試運營
施工完成,試運營沒問題后,供客戶驗收
進入正式運營,馳能專業團隊前期運營指導
廚房工程出現問題,均有專業人員上門服務