
廣東美巢灣生物科技有限公司,是一家專業生產各類化妝品,生物化工產品,紡織制品,日用百貨,民用核材料以及技術進出口等高新科技生物公司,成立于2017-10-26,總部位于佛山三水,目前總部仍在施工中。

烹飪間
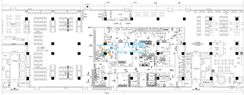
本次八吉星有幸承接美巢灣總部的員工食堂大部分工程。廚房工程設備以燃氣設備為主。整體廚房設備采用304食品級不銹鋼,對設備品質要求較高。

預處理間

海鮮處理間

清洗間
為提升整個廚房的運作效率,八吉星針對了整個廚房進行設計深化,優化了整個廚房動線,加入自動收餐系統,智能結算系統。從廚房運作,選餐,用餐,收餐,清洗整個體系效率優化,可有效減低廚房運作成本,用餐耗時。

用餐區全景

自助配餐區

用餐區

回收區

美巢灣員工食堂廚房圖紙
本次廚房案例的介紹就到這里,如果您有員工食堂廚房工程的需要,不妨聯系八吉星廚房工程,我們將竭誠為您打造適合的廚房工程。




