
虎門捷勝小學是經東莞市教育局批準開辦的一所全日制、公益性、現代化、高品位新型學校。捷勝小學是我們八吉星廚房工程的老客戶,本次八吉星有幸再次服務于捷勝小學的舊廚房改造工程。





虎門捷勝小學食堂廚房烹飪區
本次舊廚房改造工程主要是針對本次新冠疫情的實際情況進行改進,為降低在食堂用餐時可能存在的感染威脅,廢棄過去學生集中用餐的食堂模式,采用廚房統一供餐到各自課室用餐模式。

虎門捷勝小學食堂廚房精加工區

虎門捷勝小學食堂廚房冷藏冷凍區
為了滿足這次廚房改造要求,八吉星對整個廚房進行重新設計,大幅擴大本次廚房的面積,全套廚房設備進行全面升級,提升整個廚房的消毒殺菌設備的配置。


虎門捷勝小學食堂廚房蔬菜粗加工區

去皮機

水觸媒清洗機


虎門捷勝小學食堂廚房肉類粗加工區

虎門捷勝小學食堂廚房油煙凈化系統
為了進一步提升食材的清洗能力以及品質,專門配備的“水觸媒清洗機”為各種食材進行高品質清洗,搭配70平方米的“高溫蒸汽消毒房”,對整個廚房所有餐具,廚具每次使用后進行高溫蒸汽消毒,全面殺滅各種致病病菌。

虎門捷勝小學食堂廚房清洗區

虎門捷勝小學食堂廚房高溫蒸汽消毒房

虎門捷勝小學職工食堂

虎門捷勝小學職工食堂配餐間


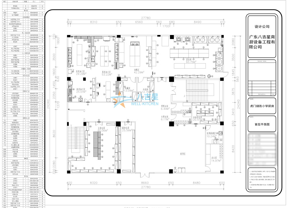
虎門捷勝小學食堂廚房工程設計圖
隨著新冠疫情的發展,越來越多學校食堂對飲食安全,疫情抗疫越來越重視,為了滿足這方面的需求,八吉星專門推出高溫蒸汽消毒房,高溫蒸汽消毒柜,紅外線消毒柜,熱風循環消毒系統等一系列針對廚房消毒的廚房工程改造。如果您有學校食堂廚房工程,對廚房消毒改造等一系列放滿的需求,不妨聯系八吉星,我們將會竭誠為您服務。




