東莞大嶺山第二小學位于廣東省東莞市大嶺山鎮金桔村委會育才路1號,校園占地面積約33179.40平方米,生均占地26.87平方米,建筑面積約23145.5多平方米,生均建筑面積18.74平方米,綠化覆蓋率達95%,是一家環境優美,綠草如茵,學習氛圍濃厚,是一家市重點公辦小學。
八吉星商廚設備工程有限公司(原明寶)有幸得到東莞大嶺山第二小學的認可,承接該小學學校食堂廚房的工程任務,八吉星根據食堂的面積,烹飪流程進行廚房設計,采用電磁設備,降低廚房工作環境的噪音,溫度以及每次烹飪的費用,提升烹飪效率。
廚房工程運營照片:

東莞大嶺山第二小學食堂廚房烹飪區

東莞大嶺山第二小學廚房食材清洗區

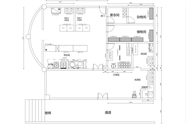
東莞大嶺山第二小學食堂廚房平面設計圖
八吉星專業承接學校食堂廚房工程,擁有專業的食堂廚房設計工程師,如果您有食堂廚房工程的需求,不妨聯系八吉星,我們會安排專業的工程師上門為您服務。




